除大塊機的工作原理
發布時間:2019-02-12除大塊機的工作原理-行業動態-洛陽廣盈機械設備有限公司點擊:8044次
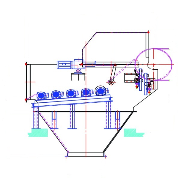
機移動維絲網(除了散裝機)旨在用于三維材料加入設備分離到所述輸送機的所述滾筒端或下方向下料斗膠帶提供一種解決方案,以使材料在輸送的過程中在材料中。在自然不變的前提下,符合實際工作條件的材料和碎片實際上有所偏差。本機的最大特點是它可以適應不同的環境惡劣的工作為濕熱、冷粘,性能可靠,沒有障礙物和高性能。根據煤的情況,安裝單元的轉子抽出機構是方便的。執行維護

典型應用
◎煤粉碎煤機輸送煤矸石熱能前,按粒徑分;
◎除煤粉碎機產生動力煤前的大型大型砌塊;
礦山煤礦制備行業大小件材料分類、;
用于冶金工業的植物研磨設備,礦物粉末和塊狀礦石的分離。
技術特點
◎操作過程中自動清潔;
結構結構板拋物線齒楔形螺旋,這有效地增加了材料和板齒之間的接觸路徑和時間,并且沒有被鎖定或卡住;
布局優化特殊牙菌斑的布局,可有效分離大塊機何塊和碎片,如條帶、塊、光纖;
◎速度傳送帶軌道生成、點抑制、和其他實際的工作條件,自動調節其位置、、角速度和其它參數;
◎過濾和回收機構,確保多余的材料不會被多余的材料和碎屑拖走;
機構可調彈性材料的正規化機制可以保證非常大的材料通過甚至材料與齒板的接觸;
◎機構可拆卸,確保傳送帶維護方便;
◎自行式或電機驅動,確保機動過渡方便;
它可以通過充電啟動,設備的總功率很小,功耗也很低。
- 上一篇:熱壓制板機是什么
- 下一篇:冷藏車廂板熱壓機的清理很重要

豫公網安備 41030502000613號