
【上河宸章】沉淀在時光里的新中式,清雋秀美惹人愛
家在中國人眼中不僅僅是一個住所
一個簡單生活的地方
家更像是心的歸宿
是流淌在我們血脈中的深沉情愫
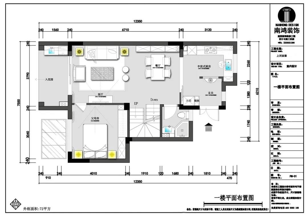
新中式風格是對傳統文化的再設計 亦是對中式風韻的現代化演繹 它將簡約內斂、精致古典的特性融入生活 有條不紊地傳遞著空間力量 01. 玄關 ENTRANCE 入戶玄關開啟了這個家的序章,彰顯著十足的儀式感。墻上開圓洞,能借此窺見到廚房的景象,空氣中也仿佛彌漫出淡淡的菜香,是只屬于家的味道呀。 02. 廚房 KITCHEN 廚房做半開放式,與玄關相連。布局是動線更為簡短的U字型,按“入戶-冰箱-水槽-灶臺”的順序就能高效開始下廚時光。 03. 客廳 LIVING ROOM 溫馨典雅的客廳空間,色彩調配和諧,不寡淡,不張揚,布藝與原木釋放著柔和氣息,一切皆從生活的本質出發,在自然之美中找尋到心靈的歸宿。 個性定制的藝術硬包化作沙發背景墻,盛開的花朵寓意著生活的美好。兩側做鏡面裝飾,既是對吊頂細節的呼應,又在無形中放大了空間。 客廳望向餐廳的角度,從這里可以清楚看到客餐廳與廚房、玄關之間的移門位置,移門一拉,便是兩塊互不打擾的獨立區域。 04. 餐廳 DINING ROOM 經過精心“妝容打扮”的餐廳就像從畫卷中走出的江南美人,優雅動人,秀麗端莊。 瓷盤花藝、畫扇茶器等中式元素,共同構筑起這個清雋和雅的室內場景,使其更為飽滿的同時視覺上也更有層次。 05. 臥室 BEDROOM 主臥納入陽臺以增強整體的空間感與明亮通透度,床尾的斗柜方便小件收納,活潑的藍粉與淡雅的綠形成對照,彰顯獨特個性。 作為休憩的地方,設計師在空間內摒棄多余的裝飾,讓每一件物品都顯得不可或缺。 女兒房結合了鮮亮的明黃與溫柔的香檳色,充滿著活力與希望。 長輩房用色沉穩,并選擇了素雅墻布來營造溫和觀感。 06. 書房 STUDY ROOM 書房,乳白色的漆面結合成品中式家具,主人的所有閑情雅致,都能在這方天地里,怡然自得。 07. 衛生間 BATHROOM 位于三樓的衛生間干區,相鄰樓梯,墻上順勢開洞以增強流動性,也不會顯得壓抑。墻地材質使用一致,保證空間的整體性。 平面戶型圖 -- ·項目信息· 項目名稱:上河宸章 建筑類型:疊排底躍 設計風格:新中式 項目地點:中國·杭州 項目面積:200㎡ 項目服務:設計·施工·硬裝·軟裝 全案設計 設計單位:浙江南鴻裝飾 施工單位:浙江南鴻裝飾






























免費
免費申請戶型規劃
專屬設計師免費1對1全程服務
已經有3785人申請
24小時免費咨詢電話
400-8800-618
你家預算
108080元