
神仙LDK一體式設計,現在種草還不遲!
LDK一體式這個概念,最早源于日本,我們在眾多日式案例中都能看到它的身影。

LDK設計在國內也已流行許久,這種設計打開客餐廚三個空間,極大提高空間利用率,也優化了生活動線,受到無數人的喜愛。

今天咱們就來好好分析一下它!
01
什么是LDK一體式設計?
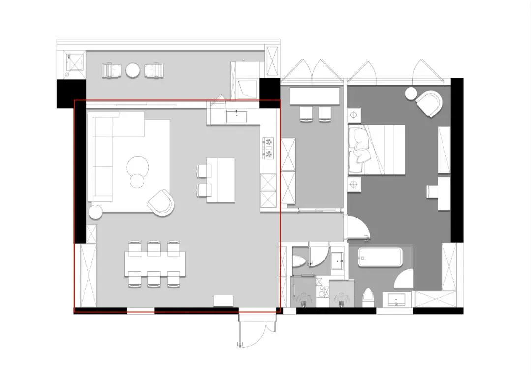
LDK,三個字母分別代表客廳Living Room,餐廳Dining Room,和廚房Kitchen。

LDK一體化指的就是客餐廚共處于一個開放空間內,構成家的核心區,在增進家人間互動的同時,實現了空間的最大化利用,這是目前裝修中一種非常流行的室內布局。


02
LDK設計的優缺點
優點:
①增強互動性
LDK一體式設計,讓客餐廚三個空間打破傳統布局中的“隔閡”,沒有了分割的墻面,幾個功能區獨立又互通,增加空間的流動質感,也提升了家人間的互動性。


廚房不再是封閉的空間,父母們做飯也不再孤單,大家只要一抬頭就能看到彼此,無形中為家人創造出更多陪伴和互動的機會。

②提升空間利用率
這也是LDK設計被小戶型青睞的原因。沒有墻體阻隔,內外互通,空間得到了最大化利用,生活動線也可以大大縮短。
里外視線流通,更能有效減少小戶型的擁堵感。


△小戶型ldk
③多功能使用
在LDK設計中,客廳不再是傳統意義上的電視+沙發+茶幾組合,完全可以根據各個家庭成員的需求來自行設計布局,形成理想的家庭核心區,打造多功能使用空間。

△核心區:家庭閱讀

△核心區:親子互動

△核心區:廚房
④改善采光與通風
打掉隔墻,光線和室外風都能暢通無阻地進入室內,使空間看起來更加開闊、明亮。

缺點:
①油煙問題
廚房與另外兩個空間打通,自然會出現油煙亂竄的問題。如果日常飲食比較清淡,或者西餐做的更多,那么開放式廚房完全沒有問題。

但是對經常下廚爆炒的家庭來說,這個問題就要注意了。

②清理問題
廚房一向是清理的“重災區”,如果平常比較懶,不喜歡收拾鍋碗瓢盆,廚具也沒有整理的習慣,那畫面真是不敢看...

03
如何解決難題?
? 選擇功率強勁的抽油煙機。入手強力抽油煙機,不管什么品牌,選擇大功率就完事了,吸力得要 900 CFM 以上的才行。

? 廚房做半開放式。比如加入吧臺隔斷,做室內窗等。


△吧臺隔斷

△室內窗
? 增加透明玻璃隔斷。落地玻璃門可達到隔而不斷的視覺效果,做飯的時候只需把門一關,就輕松解決油煙問題啦。

? 養成良好的生活習慣,保持餐廚內外整潔。
? 增加儲物空間。從櫥柜、電器柜、客廳收納柜等區域出發,詳細規劃室內整體儲物系統。另外,盡量選擇統一色系的家具,可以帶來整齊一致的視覺效果。


LDK設計所做的不僅僅是打破了阻隔空間的墻壁,它在提升生活品質的同時,也為家人之間的交流提供了更多的機會。
你是怎么看待LDK設計的呢?你在裝修中會喜歡這種布局嗎?
免費
免費申請戶型規劃
專屬設計師免費1對1全程服務
已經有3785人申請
24小時免費咨詢電話
400-8800-618
你家預算
108080元