
140方輕奢美家,生活也可以優雅成詩

地址 | 建華東苑
戶型 | 三室兩廳
面積 | 140㎡
風格 | 現代輕奢
設計施工 | 浙江南鴻裝飾
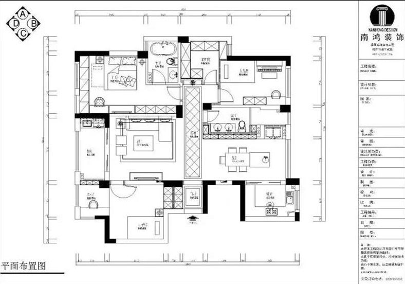
本案的業主有兩個孩子,女主人又有收集各種樂高玩偶、手辦模型的愛好,因此需求有大量儲物空間。 色彩上特意融入女主人喜愛的綠色作為空間點綴,這既帶來了鮮活的生命力,又很好凸顯出一種復古的時髦感。 戶 型 圖 01 玄 關 玄關,地面花磚界定門廳區域,換鞋凳+掛衣桿,嵌入式的玄關柜提供收納功能,底部留空,實用性一流。柜門設計了凹槽,視覺效果簡潔大方。 02 客 廳 客廳整體利用干凈利落的硬裝,搭配素雅的顏色與舒適的軟裝家具,再加一些金屬質感和清新綠植的點綴,營造出一個氛圍優雅的起居環境。 電視背景墻選用魚肚白巖板材質,加上飽和度較高的綠色點綴,呈現明快又時尚的空間感。 客廳望向餐廳。無論是場景的塑造,亦或是細節的精雕細琢,都在傳遞著一種高品位的優雅美學。 03 餐 廳 餐廳做餐桌島臺設計,黑色餐桌椅搭配白色島臺,清爽的配色、材質增強現代感。大尺寸餐邊柜充分展示著女主人的收藏愛好,冰箱做了外移,廚房也因此釋放出更多操作空間。 04 廚 房 U型廚房設計,擁有著足夠的操作臺面與儲物空間,動線也流暢。肌理感豐富的櫥柜門搭配淺色墻地磚,相當耐看。 05 臥 室 灰綠結合的休憩空間顯得尤為沉靜,背景用簡潔硬包搭配金色線條裝飾,充沛的自然光線通過飄窗透進房間,勾勒歲月溫柔。 ▲床尾規劃出女主人的梳妝區域 06 兒 童 房 男孩房,紅藍結合的活潑色彩與趣味的家具造型搭配,生動詮釋著一個活力男孩的童趣天堂。 ▲靠近飄窗的位置設計出孩子的學習區 女孩房,因為孩子年紀還小,所以這個房間暫時作為一個自由玩樂區。對需求可塑性的兒童房來說,空間設計應充分考慮到孩子的成長性。 07 衛 生 間 主衛,黑白灰的空間極具簡約美感,顯得干凈清爽,浴缸一側墻面鋪貼花磚,增添更多趣味與儀式感。 客衛,空間面積充足但整體來看較為狹長,于是利用它本身的特性做了一個干濕遞進的分區,一部分墻面同樣選擇鋪貼錯落花磚,整潔之余也讓美觀性變得更強。
















免費
免費申請戶型規劃
專屬設計師免費1對1全程服務
已經有3785人申請
24小時免費咨詢電話
400-8800-618
你家預算
108080元