
【上塘宸章】古韻中式碰撞現代元素,實力彰顯大宅風范!

// 項目信息 //
地址 / 上塘宸章
戶型 / 復式戶型
面積 / 180㎡
風格 / 新中式
設計施工 / 浙江南鴻裝飾
新中式之魂,在其簡約靈動、優雅含蓄又充滿格調的文化意蘊。它在傳揚國風美學的同時,又巧妙融合了時代特性,讓人第一眼便深陷其中。
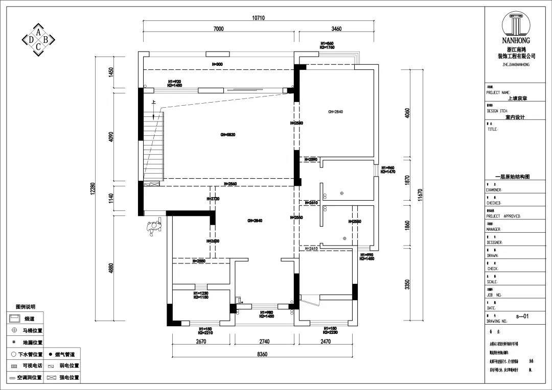
戶 型 圖


▲原始戶型圖
一家居住人口比較多,包括三個孩子一個老人,需要優先滿足房間的需求;原樓梯正對入戶門,位置不理想,需要調整。


▲平面設計圖
①通過改動樓梯的位置,讓光線和空間的利用率變高,也保證了居住的六口人都能有獨立使用的房間和公共活動的空間;
②餐廳頂部梁很多,特意用了不銹鋼條裝飾,打造出新中式獨有的造型吊頂。
01
客 廳


素雅的色彩,簡潔的線條,富有文化韻味又不失設計感的空間格調,無聲交織出新中式那優雅而沉穩的氣度。
頂部為了緩解層高問題,選擇了布局對稱的無主燈設計,柔和的暖光也在一定程度上中和了大理石的冰冷。

結合樓梯區域做出電視背景墻,并將傳統電視換成投影幕布,更具休閑意味。留白的電視墻與深色家具相襯,視覺對比鮮明。

客廳與陽臺之間以銅制雕花屏風隔斷,在劃分區域的同時,也起到了非常好的裝飾效果。

沙發后的寬敞過道留出了鋼琴的位置,墻面做分體式回紋柜子滿足收納需求,鋼琴嵌于收納區之中,和諧相融。

02
餐 廳

餐廳恰好處于“交通要道”,居中擺放的餐桌好比一個樞紐,將每個獨立空間相互串聯起來,隱形門的效果則讓整體裝飾風格得到統一。

餐廳頂部用深色不銹鋼線條勾勒,搭配華貴的主燈來增添用餐的儀式感。餐邊柜旁規劃了冰箱位,借此釋放出廚房空間。
03
樓 梯

大理石材質鋪就的樓梯區域美觀大氣,臺階高度約為18cm,踏步邊的墻面位置安裝上了感應燈,方便全家人夜間走動。
04
臥 室


二樓主臥房,相比公區域而言,這里的色彩使用更為濃烈,鮮艷色調提供沖擊性視覺的同時釋放出強大張力,為空間注入華貴氣息。背景墻采用布藝硬包結合定制壁畫,層次感豐富。


一樓長輩房,深灰的墻布鋪墊安穩基調,色彩豐富的裝飾畫小小提亮空間,不致沉悶,兩側安上壁燈,補充光源的同時能更好地烘托氛圍。
05
兒 童 房

兒童房一,選用小女孩最愛的粉色打造,家具軟裝燈飾與粉色呼應,呈現柔和的夢幻童趣。

兒童房二,色調和布置上更加簡潔清爽,利用白色高低床打造睡眠區,并沿窗邊設計出雙人位學習區,實用性強。
免費
免費申請戶型規劃
專屬設計師免費1對1全程服務
已經有3785人申請
24小時免費咨詢電話
400-8800-618
你家預算
108080元