
上湖城章 | 低調舒適的現代輕奢,素雅原木色輕灑自然溫柔

// 項目信息 //
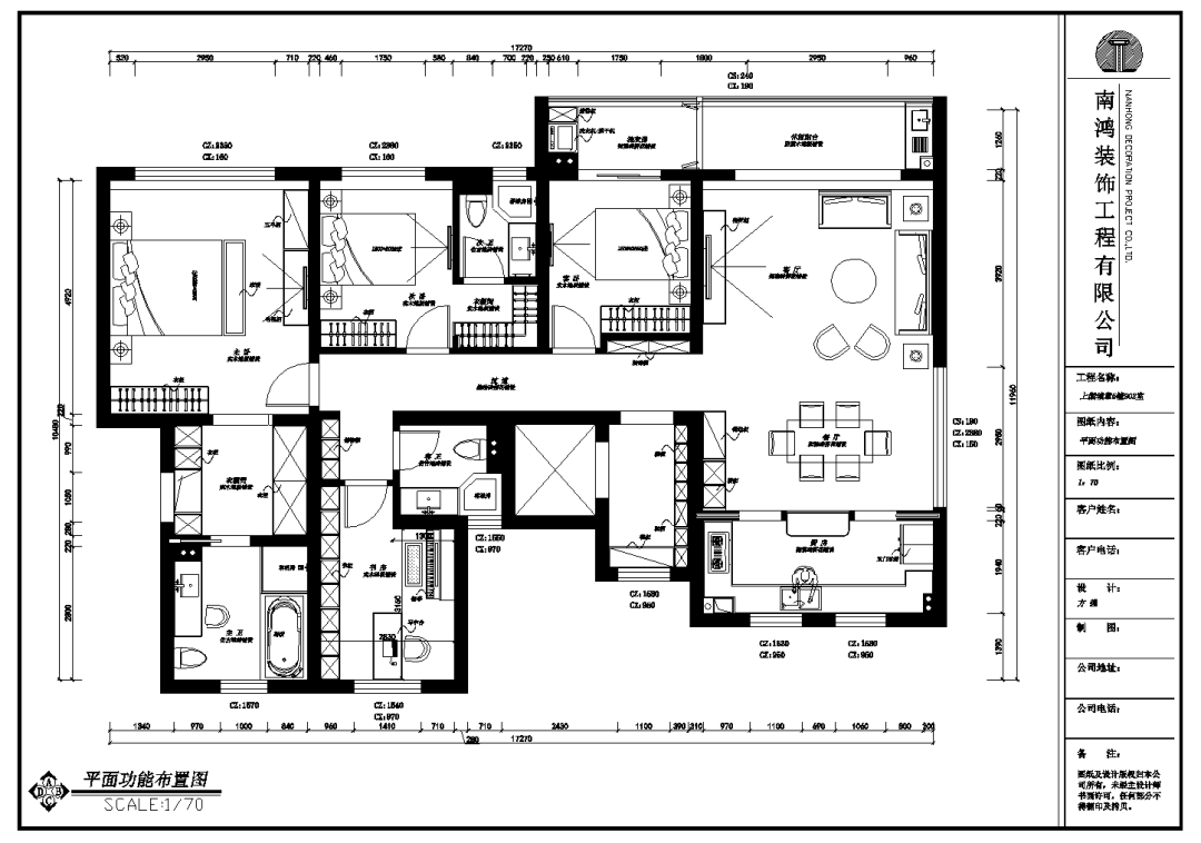
地址 / 上湖城章 戶型 / 四室兩廳 面積 / 156㎡ 風格 / 現代輕奢 設計施工 / 浙江南鴻裝飾 本案以高品質的輕奢風格為理念,硬裝設計簡潔流暢,素雅的配色給人溫暖又舒適的感覺。與一般的現代風格相比,輕奢風往往能表達出更高級的品質感與設計感。 戶 型 圖 客 廳 Living Room 客廳用低調的色彩鋪出簡潔的基底,細節中加入了許多金屬元素來增添視覺亮點,多樣化的燈光設計讓空間的層次性更加凸顯,呈現出明快而大氣的氛圍感。 電視背景墻做了懸浮設計,減輕了石材帶來的厚重感,同時為了協調比例與增加儲物空間,右側還設計了一排壁柜。 造型簡潔,線條流暢的家具組合搭配,營造出穩定、和諧、溫馨的空間感受。 餐 廳 Dining Room 餐廳與客廳處于同一空間,能夠實現家人之間更高的互動性。纖薄的大理石餐桌搭配簡約的現代餐椅,頂面的主燈造型頗具藝術氣質,營造出美妙的就餐氛圍。 廚 房 Kitchen 廚房,白色的櫥柜、墻磚讓視覺的純凈感達到極致,充足的操作臺面與完備的廚電能輕松滿足中西兩式烹飪需求。 走 廊 Passage 走廊,目之所及是溫軟細膩的原木色,弱化了空間的清冷,為居家注入自然的溫度。 臥 室 Bedroom 主臥,灰色硬包背景墻內嵌寬度不一的金屬條,結合淺色木飾面,大大豐富了空間的裝飾性。整體布局清爽整潔,構建出美好純粹的睡眠環境。 主臥空間非常大,內部還設計有專門的衣帽間,安裝茶色玻璃門與內部燈光,精細考量的人性化設計讓生活更加舒適。 次臥,木格柵元素的加入無形中拉伸了層高,整體灰黑的配色更顯得酷雅有范。 書 房 Study 書房,是靜下心來工作學習的地方,不需要多么繁雜的裝飾設計,書桌椅+書柜的組合,簡單實用就好。 衛 生 間 Toilet 衛生間,墻地鋪滿暖灰色瓷磚,使得空間溫暖又高級,大理石與原木組合的臺盆柜顏值頗高,墻鏡的隱形燈光也讓視覺更為舒適。













下一篇:干飯人,干飯魂,配好餐桌人上人
免費
免費申請戶型規劃
專屬設計師免費1對1全程服務
已經有3785人申請
24小時免費咨詢電話
400-8800-618
你家預算
108080元