
新城風景 | 現代風格點綴輕奢細節,通透開敞的空間設計讓人驚艷!

業主夫婦是一對時尚達人,比較能接受新事物,夢想中的家是簡潔大氣不繁瑣,又能有充足的收納空間,更重要的是,要有大宅的品質感。
設計師在諸多現代元素中融入了輕奢細節,在黑白灰的主色中以材質串聯空間,純粹而不失趣味。
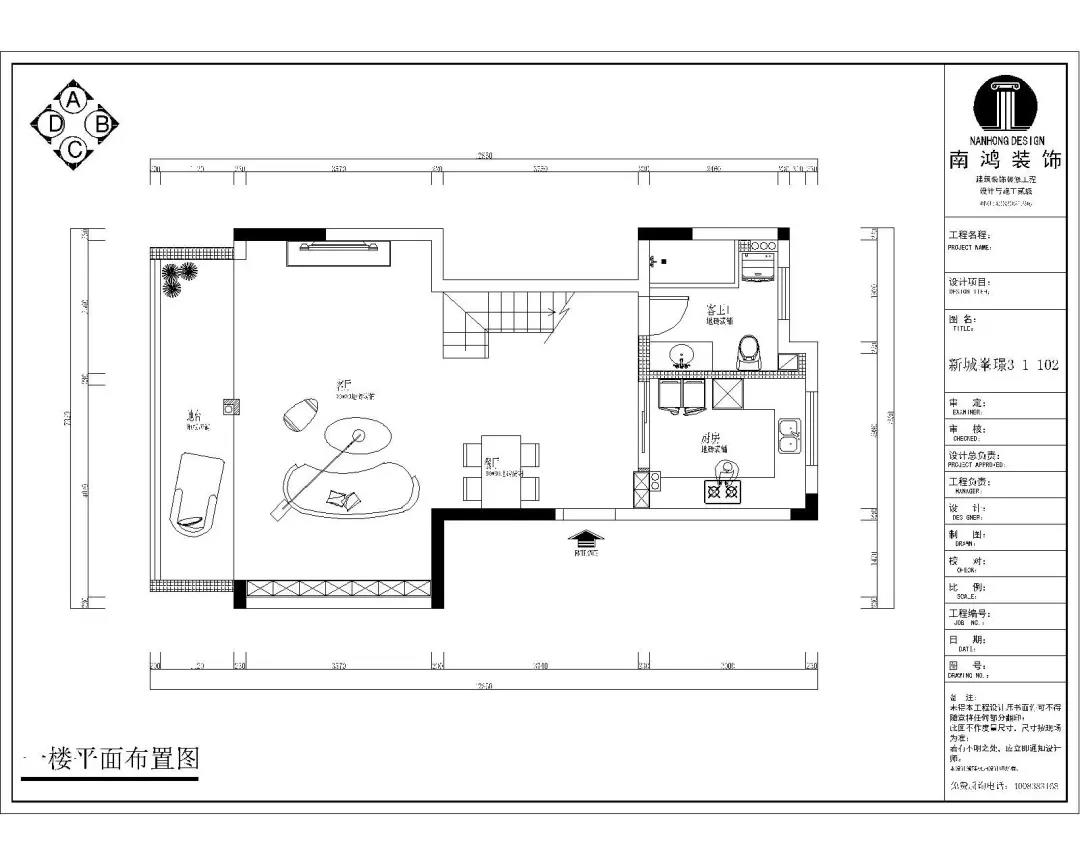
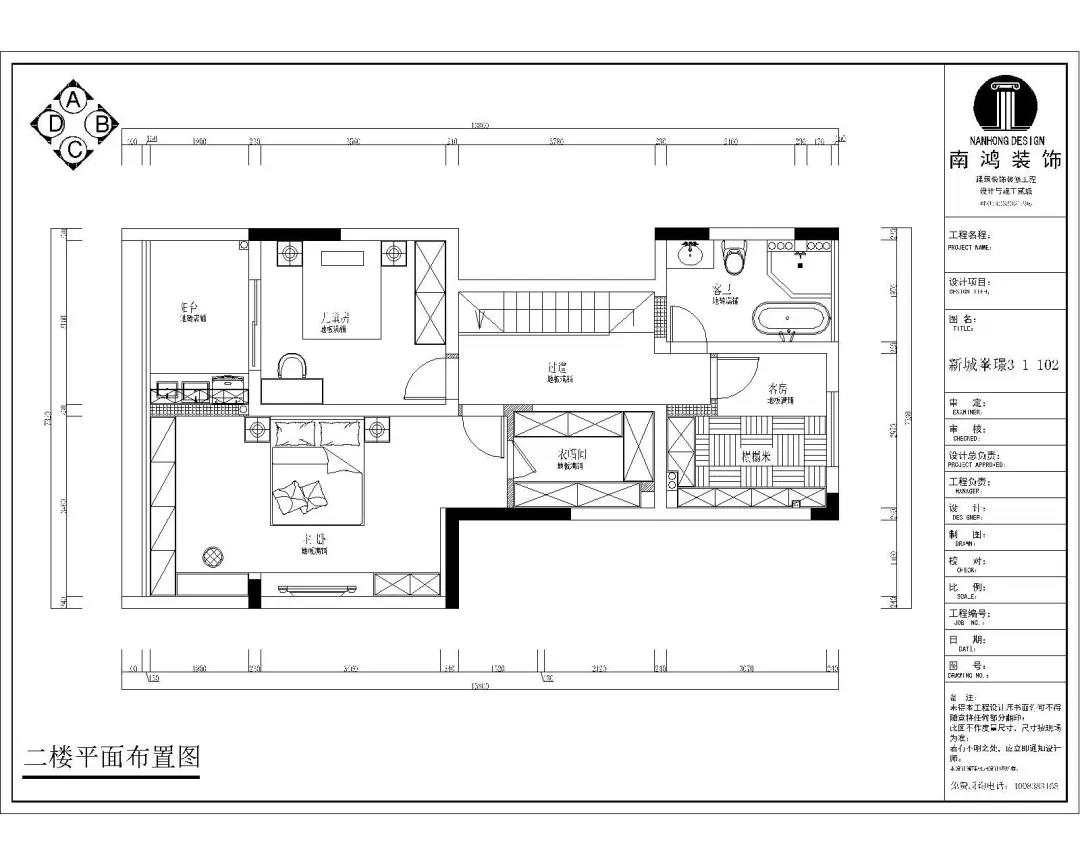
戶 型 圖 ▲房子本身南北通透,一樓考慮到采光,打通了所有區域,做了大客廳,餐廳和休閑玩樂區,動靜分離,二樓便設置了2個臥室、1個客房,客房做了榻榻米擴大收納空間。 客 廳 Living Room 通過平面布局我們也能看到,開闊寬敞的大客廳是這個家絕對的主角,給人第一眼便是大氣磅礴的感覺。咖啡色的質感沙發從黑白灰的空間主調中跳脫出來,帶來一抹十足的亮色。 客廳特意沿窗打造地臺作為業主一家的休閑區,地臺外面就是花園,既方便平時觀覽風景,又提供了孩子玩樂及父母陪伴孩子的空間。 考慮到業主的生活習慣及家里孩子的情況,我們用投影幕布取代了傳統的客廳電視。頂面使用無主燈設計,金屬的走邊更顯精致。 ▲客廳細節圖 餐 廳 Dining Room 餐廳與客廳相鄰,開放通透的設計,光線明亮,線性的主燈、餐桌椅腳細節帶來纖細美感,營造舒適愜意的用餐氛圍。 從這個角度可以看到玄關與廚房的位置,餐廚之間以玻門隔斷,深淺色調對比形成視覺張力,而玄關則被弱化,更加簡潔清爽。 餐廳設置鏡面,巧妙延伸視覺空間。 廚 房 Kitchen 廚房呈U型布局,白色的簡潔與深木色的厚重形成鮮明對比,大型廚電嵌入柜體,電器高柜的設計合理利用廚房空間,也給予了更多收納位置。 樓 梯 Staircase 樓梯下方設計了裝飾柜兼儲物柜,不浪費一點多余的空間。黑白相間的階梯設計仿佛一塊塊鋼琴鍵,讓富有節奏感的動人韻律緩緩流瀉而出。 臥 室 Bedroom 主臥以中性黑白灰搭配清新藍調,用單純的色彩和多樣的材質來傳遞空間的細膩質感,深沉又足夠精致。 床頭背景墻的波浪紋理讓空間在沉靜中透出一絲活潑的氣息,打破沉悶,柔和的照明有助于打造舒眠的環境。 結合飄窗設計了梳妝臺,一抹圓鏡斂起歲月的細膩柔情。 ▲主臥細節圖 粉嫩的兒童房布置得頗有童趣,沒有花里胡哨的設計,有的只是從各種點滴細節中就能看出的父母對孩子的殷殷之情。 衛 生 間 Toilet 二樓的衛生間,淺灰色的墻地磚搭配白色集成吊頂,同時設計了淋浴區與浴缸,功能區的豐滿能帶給生活最大的舒適。 | 地址:新城風景 | 戶型:復式 | 面積:180㎡ | 風格:現代 | 設計施工:浙江南鴻裝飾

















免費
免費申請戶型規劃
專屬設計師免費1對1全程服務
已經有3785人申請
24小時免費咨詢電話
400-8800-618
你家預算
108080元