
江南一品 | 陪伴,是最長情的告白
《告·白》
如果說愛情的告白,
是一場充滿驚喜的儀式,
那么生活的告白,
則需要長情的陪伴和些許情調的點綴。

// 項目信息 //
地址 / 江南一品
戶型 / 四室兩廳
面積 / 180㎡
風格 / 現代簡約
設計施工 / 浙江南鴻裝飾
本案的男女業主喜歡現代簡約風,故設計師選擇了黑白灰來書寫長情的基調,又因是婚房,所以用些許彩色的點綴來營造生活的小情調。
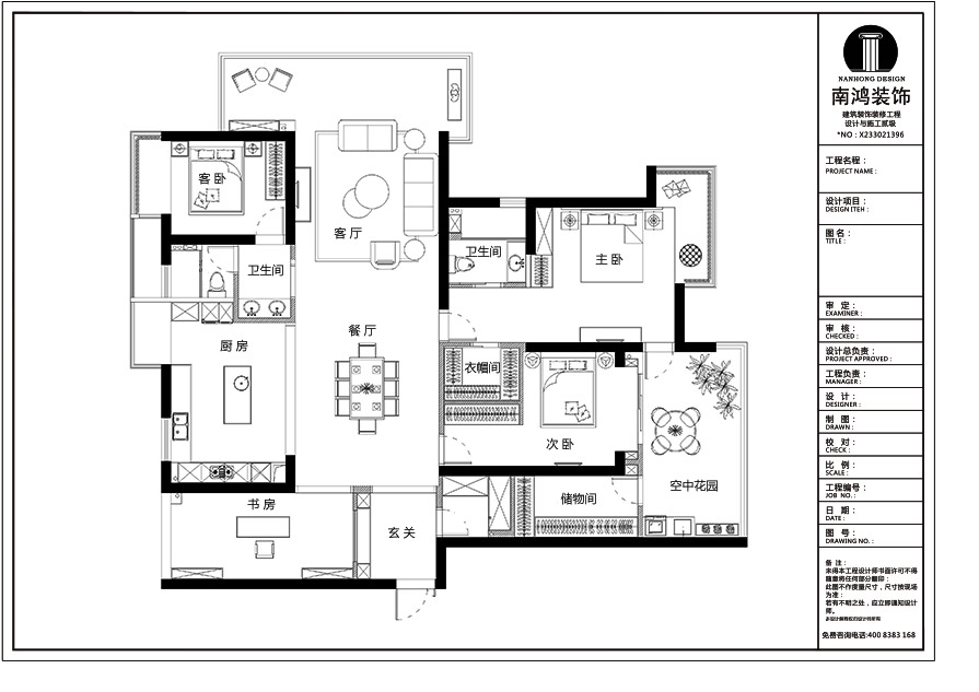
戶 型 圖

客 廳 Living Room

客廳的淺灰色調顯得干凈又敞亮,電視背景墻選用高級的魚肚白巖板,與整體色調和諧呼應。


純色灰調的皮質沙發展現一種極致的純粹感,沙發前的圓形組合茶幾與上方的吊燈形成呼應,于細節處顯巧思。
客廳兩側的木飾面,與全屋的木門,共同為空間增添了素雅柔和的氛圍。
餐 廳 Dining Room

客餐之間沒有明顯的分界,用餐空間更靈活。

餐桌用了深色的巖板,餐椅的高飽和橙色則為空間注入了活力因子,而天花的吊燈,同樣是圓環形組合,換了一種組合方式與傾斜角度,卻又是別樣的美。
廚 房 Kitchen

廚房做了敞開式,灰系櫥柜組合白色臺面在視覺上便令人倍感舒適,中島的設置更讓空間多了現代感和互動性,讓烹飪的愉悅,一覽無余。
臥 室 Bedroom

主臥強調簡潔的線條感和溫馨的視覺感受,木地板搭配棕色木紋背景,舒適的雙人床讓每一次的休憩都成為不可多得的幸福。

為未來小寶貝準備的兒童房,布置簡單,更多是保留了一份期待。
書 房 Study

書房,黑色的書桌椅線條流暢,簡約的造型彌漫出沉靜的氣息,書柜則用了白色與橙色的跳躍組合,好似為每日的工作、學習賦予了更多靈感因素。
衛 生 間 Toilet

雙臺盆設計提升日常的使用效率,黑與白形成了完美的視覺平衡。

一體式臺盆深度恰好,又方便清潔,仿佛懸浮的圓鏡為空間增添了一層科技性與未來感。
向往的生活,其實并不需要過多物質的堆砌,所需的,僅僅是最簡單、純粹的陪伴,如此而已。
免費
免費申請戶型規劃
專屬設計師免費1對1全程服務
已經有3785人申請
24小時免費咨詢電話
400-8800-618
你家預算
108080元