
139㎡現代意式:在喧囂世界,筑一座寧靜而優雅的棲心堡壘

本期要為大家分享一套139方現代意式風的案例。
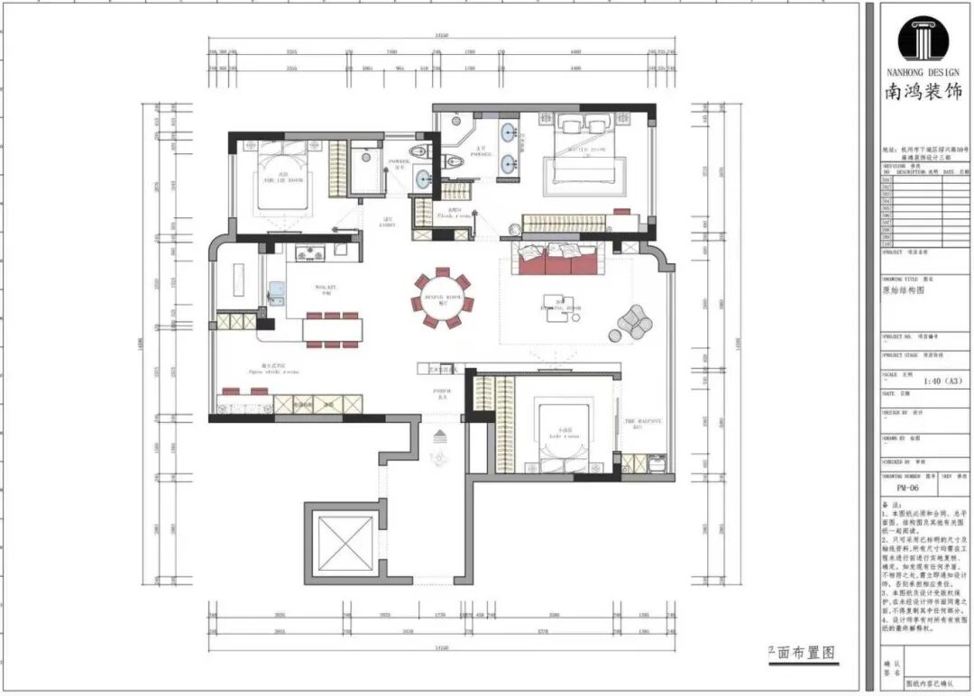
本案以現代意式美學為根基,展陳凝練的秩序與克制的優雅??臻g以黑白灰為主調,搭配活力橙,如同平凡日常中那些不期而遇的驚喜,為整體氛圍注入更多的生動情緒。 格局上,設計師重新梳理了脈絡,讓功能規劃、動線分布更貼合居者的實際生活場景。最大尺度被讓渡給公共區域,開闊通透的交互場域內,所有的言談歡笑,自然地化作生活中那些溫暖、珍貴的畫面。 ▲平面方案 入戶以一道藝術裝置作為序幕,隔斷形式遮擋視線,增強步入的儀式感。 白與灰的基底色在客廳內鋪開沉靜雅致的氛圍,不同材質和諧搭配,在清爽明朗之余,更賦予空間富有層次的藝術感。 懸浮型電視背景框架筑于溫潤的木飾面之上,留足視覺呼吸的余裕。開放層架方便收納日常點滴,陳示生活的溫度和情致。 客廳兩側均裝飾奢石,獨特的紋理與光澤為空間注入美妙、精致的現代旋律。材質的冷暖對比,亦賦予場域一種靜謐、從容兼具大氣的格局。 低飽和度軟裝延續平穩氣質,一抹橙調的單人沙發則起到提亮的作用。隱形門設計延展橫向視覺尺度,使立面完整流暢,于寧謐中暗蘊張力。 餐廳分設中西兩種模式:一側是傳統圓桌,圍攏聚餐時的溫暖;一側是現代感島臺餐桌,放大互動的自在。設計在豐富餐廚空間功能形態的同時,更讓情感與生活在此完美融合。 西餐廳與廚房相聯,構成一體化高效互動場域,緊湊動線中,功能交織凝練有序。頂部選配藝術吊燈,打造一處美觀精致的視覺焦點。深灰系廚房彰顯干練氣質,L型操作臺延伸出島臺與餐桌結合,結構流暢完整,兼具烹飪效率與互動可能。 餐邊柜向窗臺衍伸出一方安靜的書桌角落,在光的描摹下,成為日常生活中一處自在棲息地,既可隨性辦公或閱讀,又方便小酌、享用茶點小食,自由隨心。 意式格調臥室,以經典黑白灰為底色,低調中內含奢華之意。背景面融合護墻板與硬包材質,縱向的線條搭配鑲嵌的奢石紋理,簡練又優雅地勾勒出從容生活之姿。 陽臺融入室內,延展了公共區域的物理尺度,讓充沛的自然光自由抵達整個空間。與客廳、次臥緊密相連的動線,就此在開放與獨立之間構筑出靈活流動的家屋格局。 配置家政柜,并嵌入洗衣、烘干機,家務流程簡便順暢,空間回歸整潔與寧靜。 衛浴空間整體鋪陳微水泥質感的大規格瓷磚,將深邃的意式格調沉穩延續。 項目信息 項目名稱:煙波飛鷺 設計風格:現代意式 項目類型:三室兩廳 項目地點:中國·杭州 項目面積:139㎡ 項目服務:設計·施工·硬裝·軟裝 全案設計 設計團隊:杭州南鴻裝飾 許明 設計單位:浙江南鴻裝飾 施工單位:浙江南鴻裝飾
















免費
免費申請戶型規劃
專屬設計師免費1對1全程服務
已經有3797人申請
24小時免費咨詢電話
400-8800-618
你家預算
108080元