
107㎡意式輕奢:于沉靜中,喚醒品質生活的儀式感
本期要為大家分享一套107方意式輕奢風的案例。
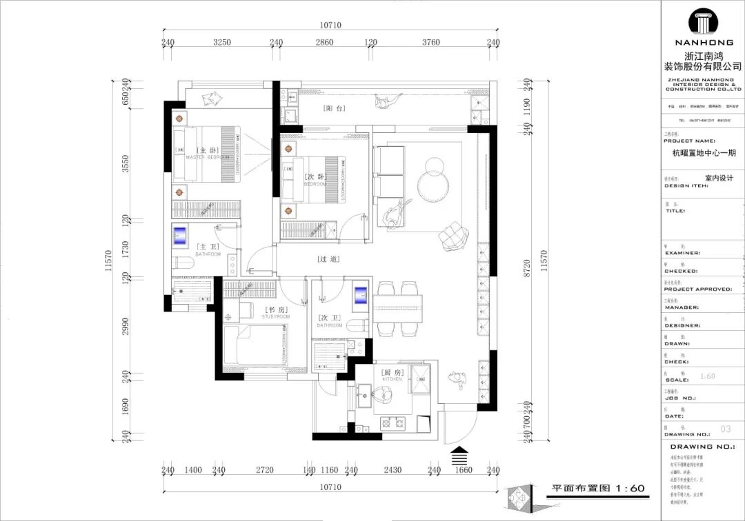
本案是一套精裝房的改造項目,業主鐘情高級感的灰黑系,希望新家經重新設計之后,能夠擁有更加沉穩大氣的格調與突出的品質感。 設計師以溫潤木色打底,融入線條精練、造型優雅的意式深色家具,令居室兼得理性秩序與感性溫度,也為業主營造出一處安穩愜意的棲心之所。 ▲平面方案 精準意式筆法,在原有的精裝架構中,成功搭建起全新的空間層次和視覺秩序。設計師通過對結構、材質與光線的調控,為這間居所賦予了沉穩的敘事節奏,生活由此展開廣闊的想象。 方正客廳以木色鋪底,筆直的線條勾勒外型,加之不同家具質地的碰撞,由此浮現穩健而不失溫度的空間感。光線漫溢,居所達成實用與美學的平衡,也成為主人生活品味的一種無聲表達。 低斂的灰黑色系是空間的主旋律,在視覺上抹除情緒的干擾,讓感官回歸至沉靜。 通透的流動感格局中,客廳與餐廚區域形成柔性邊界,保持功能獨立的同時延續著視覺張力。餐桌椅靠墻安放,留出從容動線;直線型吊燈懸垂而下,呈現出寧靜寬和的意蘊。 餐廚相鄰,讓烹飪、上菜的動線高效而便捷,玻璃移門的隔斷方式,既能保持視覺的連貫,又能依使用情景靈活開合。三餐的煙火氣,自然融入到家人相處的每一刻時光。 設計沒有做任何刻意的裝飾,只是透過材質、比例與光影的細致協作,讓空間久久相伴一種低調的穩雅。 飄窗在床尾延伸出梳妝臺區,立面使用深色玻璃柜,兼顧通透感與防塵性能,內置分層系統,讓各類化妝品、護膚品各安其位。 衛浴空間以柔灰系的瓷磚打造主基調,整體氛圍力求簡約舒適。鏡柜收攏日常洗漱用品,讓臺面時刻保持清爽整潔。 P.I. 項目信息 項目名稱:杭曜置地中心 設計風格:意式輕奢 項目類型:三室兩廳 項目地點:中國·杭州 項目面積:107㎡ 項目服務:設計·施工·硬裝·軟裝 全案設計 設計單位:浙江南鴻裝飾 施工單位:浙江南鴻裝飾











免費
免費申請戶型規劃
專屬設計師免費1對1全程服務
已經有3798人申請
24小時免費咨詢電話
400-8800-618
你家預算
108080元