
380㎡優雅度假排屋,巧用夾層空間,暢享舒適人居!

項目信息 地址:越秀星悅城 城市:中國 杭州 戶型:排屋 面積:380㎡ 風格:現代輕奢 設計施工:浙江南鴻裝飾
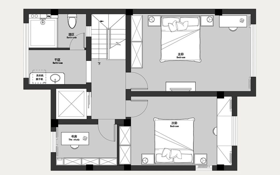
本案是業主在臨安購置的一套排屋,主要用作度假與會客。 380方總共四層加夾層的排屋空間,雖然可利用面積很多,但也存在地下室潮濕、層高不足等小問題。設計師根據戶型特點和業主需求進行針對性改造,為他們合理規劃功能區,并重點改善夾層空間,引入自然光線,使居家環境寬闊又敞亮。 Layout Design 戶型方案 滑動查看>> 地下室,夾層,一層,二層,三層 Hallway 玄關 入戶進來的視覺較為開闊,為了保護隱私,在樓梯口與客廳位置分別使用了隔斷進行一定遮擋。 長虹玻璃的壓花紋理將光線漫射,形成虛化效果,既能保護隱私,也增強了玄關的美觀度,搭配上金屬邊框,更顯輕奢的意味。一小一大兩塊隔斷,自然地引導視線過渡。 Living Room 客廳 客廳在材質、紋理和色彩的維度上都有著豐富的層次感,由巖板、科技木和霧霾藍飾面板組合的背景墻一眼吸睛,米白色真皮沙發搭配visionnaire普拉達綠大理石面茶幾,輕松營造精致而優雅的居家氛圍。 頂面用無主燈設計搭配法式角花線條,輕與奢的屬性雙重安放。居室高雅端莊的氣質在精細的家具、線條和材質紋理上展現得恰到好處,墨綠的點綴色瞬間點亮了平靜的空間。 Dining Room 餐廳 餐廳相鄰客廳,以圓桌的形式打造,頂部用線條呼應并添置一盞吊燈,增強用餐的儀式感。 餐桌與餐椅的選擇呼應客廳的氛圍,背景墻結合藝術涂料、護墻板和格柵,提升立面的層次。 Leisure Area 休閑區 夾層通過采光井的設計,將自然光線引入,室內變得敞亮而通透。 這層空間主要作多功能休閑娛樂區使用,包含水吧臺、品茗區和影音區。橙色的異形轉角沙發質感高級,坐感舒適,背景墻部分則運用遠山的紋理,氣勢更顯磅礴。 Bedroom 臥室 相比客餐廳,臥房是更強調個人,也更能展現自我生活態度的家居空間。主臥的色彩素雅而溫馨,背景墻拉伸間距不一的線條提升視覺多樣性,整體予人柔和、寧靜的休憩感。 女兒房套房的布局與主臥相似,棕灰的色系顯現主人的大方沉穩,兩側均掛吊燈,為每一個夜晚構造獨特的浪漫情致。 次臥簡約實用,墻體與頂面不加多余的裝飾,保留素雅的格調。沿窗打造儲物柜與桌體的組合,方便留宿人在此處理事宜。 Bathroom 衛生間 衛浴空間做了三分離的設計,統一的淺色瓷磚鋪設打造清爽利落的氛圍,淋浴區與馬桶區均用玻璃隔斷隔開,極大提升日常的使用效率。
























免費
免費申請戶型規劃
專屬設計師免費1對1全程服務
已經有3787人申請
24小時免費咨詢電話
400-8800-618
你家預算
108080元