
【80㎡奶油風】是粉紅色的愛和溫柔吖

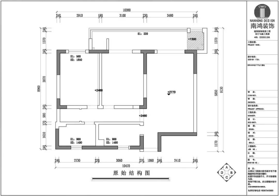
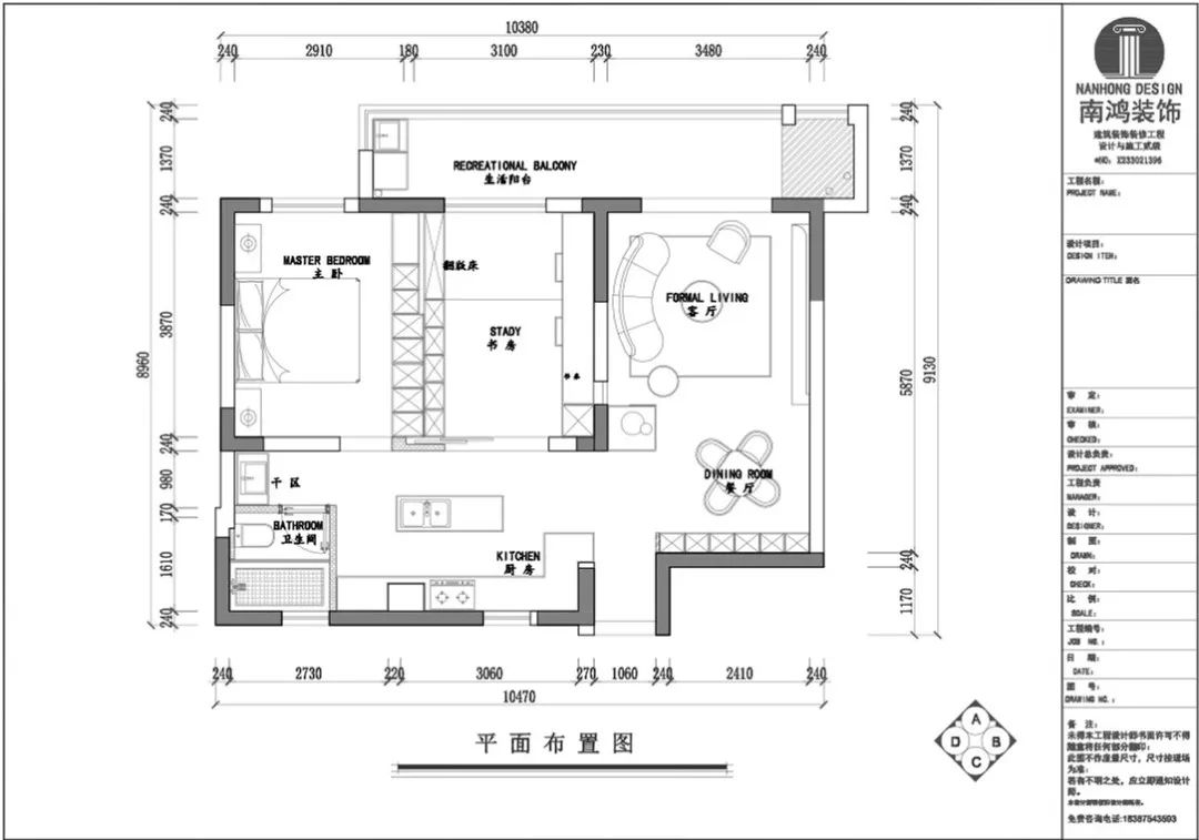
項目信息 PROJECT INFORMATION 地址/ 田園山水里 城市/ 中國 杭州 戶型/ 兩室兩廳 面積/ 80㎡ 風格/ 奶油風 設計施工/ 浙江南鴻裝飾 本案的業主是一位氣質溫柔的小姐姐,喜歡粉色,希望家是溫馨舒適又有高級感的。整體設計為業主的單人居住做了最充分的考慮,小小的戶型將所有必需的功能有序安放。空間用奶油白和淺灰作主調,添加了粉色的元素來讓家顯得更有少女心,也更貼合業主的喜好。 “本案的設計靈感源自我和這位業主的第一次見面,小姐姐整個人的氣質形象就是非常溫柔的少女系,再加上本人也是偏愛粉色,所以空間風格上選擇了奶油風加上粉色的搭配。 戶型改造上的話,我最滿意的地方是廚房這部分。和一開始狹小壓抑的原廚房完全不一樣,改造后非常寬敞明亮。對于小姐姐的獨居生活來說,下廚是很重要的一趴,所以在廚區的規劃上也是下了很多的心思。另外粉色的島臺和水磨石材質也很適配,氛圍感拉滿了。” 戶型設計 | 原始戶型擁有雙陽臺,采光比較好,但是廚房小且昏暗,還有一條很狹長的過道。 設計改動: ①將廚房的三面墻全部打掉,做成開放式,并把原本過道的空間都利用了進來; ②將書房一側的隔斷墻打掉改為玻璃門的形式,讓南面陽臺的光線引入廚房; ③衛生間墻體內推并借過道做干濕分離; ④主臥與書房的墻體打掉,留出的面積做嵌入式衣柜,增加收納。 1 | 玄關 Hallway 玄關用地毯、鞋柜、卡通換鞋凳等鋪墊出簡單卻溫馨的儀式感,就此開啟自由自在的快樂生活。 2 | 客廳 Living Room 居所如人,這個家就同主人的生活一樣,無比的純粹、柔和。空間基調是治愈系的奶油白,通鋪木地板,頂面做無主燈,家具保留必要的幾樣,營造簡約自由的生活況味。 平和的淺色系,帶來休閑靜謐的氣息。陽臺埡口與電視背景墻的弧形元素,加上不落地的電視柜設計,增強了空間的立體感和通透性。暖色燈光投射,讓柔和溫馨的氛圍感受在客廳內安靜地流淌。 三列水波紋玻璃磚嵌入在客廳與書房的隔斷墻之間,純凈透亮的質感,也讓空間的趣味感和互動性大大增強。 3 | 餐廳 Dining Room 餐廳與客廳和廚房緊密相連,整體動線流暢,符合日常的使用情景。餐邊柜融入水吧臺的功能,擴大了操作空間。 利落的線條與圓潤的弧形,在餐廳碰撞出獨特且高級的質感。留白的純色背景、輕盈的造型為視覺減負,呈現優雅而靈動的氛圍。 4 | 廚房 Kitchen 廚房經改造后,在視覺上被打開,顯得格外敞亮開闊,并利用空間結構做L型櫥柜設計。墻地面鋪貼暖灰色水磨石瓷磚,清爽又能顯出活力,成功讓餐廚區成為家中的吸睛點。 大大的島臺也是將顏值和功能性拉滿,幫助實現下廚自由。 5 | 臥室 Bedroom 臥室采用了白色波浪板和乳膠漆相搭配的半墻設計,色調有層次感,視覺上又是協調統一的。深色的床品頗具復古的意味,也賦予了空間更加沉穩靜謐的基調。 6 | 衛生間 Bathroom 洗手臺盆外置在走廊過道處,實現了干濕分離。干區懸浮式臺盆和藝術圓鏡美觀大方,可抽拉的水龍頭也讓日常清潔更為省力。水磨石元素貫穿空間內外,讓整屋的風格保持一致。



















免費
免費申請戶型規劃
專屬設計師免費1對1全程服務
已經有3785人申請
24小時免費咨詢電話
400-8800-618
你家預算
108080元